产品特点
领先的稳定性
吊臂采用高强钢U型截面直臂结构,5节臂最大作业半径覆盖19.5米;双腔支腿跨距超7000mm,提供行业领先的稳定支撑;标配双联泵、敏感比例阀、智能温控散热系统及自动收钩装置;选装双回转减速机+斜轴柱塞马达,操作精度与耐用性双重提升
起重性能强
SQS350 重新定义了高效重载物料搬运的标杆,拥有卓越的起重性能、更稳定的工作平台和更广泛的应用范围。SQS350 尤其适用于重型机械搬迁、钢结构厂房建设、大型电力设施安装以及超大景观树木移植等高要求作业
技术参数
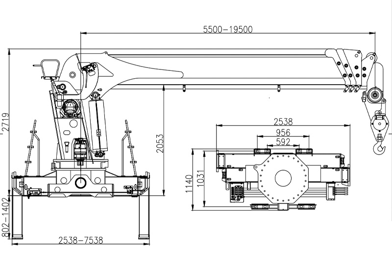
SQS350起重机参数
| 序号 | 项目 | 单位 | SQS350 |
| 1 | 最大起重质量 | kg | 14000 |
| 2 | 最大起重力矩 | t·m | 35 |
| 3 | 最大工作半径 | m | 19.5 |
| 4 | 最大起升高度 | m | 21.4 |
| 5 | 最大变幅角度 | ° | 75 |
| 6 | 回转角度 | ° | 360 |
| 7 | 起重臂节数 | 节 | 5 |
| 8 | 基本臂工作半径 | mm | 5500 |
| 9 | 前支腿跨距* | mm | 2538-7538 |
| 10 | 后支腿跨距* | mm | 2400-4900 |
| 11 | 安装所需最小间距 | mm | 1031 |
| 12 | 推荐使用功率 | kW | 35 |
| 13 | 系统额定流量 | L/min | 80(63/50) |
| 14 | 系统额定压力 | MPa | 26 |
| 15 | 液压油箱容积 | L | 210 |
| 16 | 整机重量** | kg | 6136 |
| *支腿边缘到边缘长度数据 | |||
| **仅指起重机部分,不包含后支腿及其他附件 | |||
SQS350起重机性能参数
| 工作幅度 (m) | 不同臂长最大起升载荷(kg) | ||||
| 5.5m | 9m | 12.5m | 16m | 19.5m | |
| 2.20 | 14000 | ||||
| 2.50 | 14000 | 9000 | |||
| 3.00 | 12000 | 8000 | 6300 | ||
| 3.50 | 11000 | 7000 | 5700 | 4600 | |
| 4.00 | 10000 | 6000 | 5200 | 4200 | |
| 4.50 | 9000 | 5400 | 4900 | 3800 | 3700 |
| 5.00 | 8000 | 5200 | 4700 | 3700 | 3600 |
| 5.50 | 6000 | 5000 | 4500 | 3600 | 3500 |
| 6.00 | 4800 | 4300 | 3500 | 3400 | |
| 6.50 | 4500 | 4100 | 3400 | 3300 | |
| 7.00 | 4300 | 3900 | 3300 | 3200 | |
| 7.50 | 4100 | 3700 | 3200 | 3000 | |
| 8.00 | 3900 | 3500 | 3000 | 2800 | |
| 8.50 | 3700 | 3200 | 2900 | 2600 | |
| 9.00 | 3500 | 3000 | 2800 | 2400 | |
| 9.50 | 2800 | 2600 | 2200 | ||
| 10.00 | 2600 | 2400 | 2000 | ||
| 10.50 | 2400 | 2200 | 1900 | ||
| 11.00 | 2200 | 2000 | 1800 | ||
| 11.50 | 2000 | 1800 | 1700 | ||
| 12.00 | 1800 | 1700 | 1600 | ||
| 12.50 | 1600 | 1500 | |||
| 13.00 | 1500 | 1400 | |||
| 13.50 | 1400 | 1300 | |||
| 14.00 | 1350 | 1250 | |||
| 14.50 | 1300 | 1200 | |||
| 15.00 | 1250 | 1150 | |||
| 15.50 | 1200 | 1100 | |||
| 16.00 | 1050 | ||||
| 16.50 | 1000 | ||||
| 17.00 | 950 | ||||
| 17.50 | 900 | ||||
| 18.00 | 850 | ||||
| 18.50 | 800 | ||||
| 19.00 | 750 | ||||
| 19.50 | 700 | ||||
| 推荐倍率 | 6 | 4 | 4 | 4 | 4 |
力矩图

尺寸




